반응형
서울에서 행복주택을 기다리셨던 분들에게 희소식이 도착했습니다. LH는 2025년 7월 16일 자로 서울 송파·강남·강동 지역의 인기 행복주택 단지에서 예비입주자를 모집한다고 공고했습니다. 해당 단지는 서울삼전, 서울잠실, LH수서1, LH수서2, 강동천호 총 5곳으로, 각기 다른 입지와 조건을 갖추고 있어 자신의 조건에 맞춰 선택할 수 있습니다.
이번 글에서는 모집 단지별 주요 정보 요약, 지원 자격, 경쟁 지역과 비교, 추천 대상 분석, 신청 일정 및 절차, 그리고 구조화된 소제목 구성을 통해 예비신청자분들께 실질적이고 실용적인 정보를 제공합니다.
🏢 공급 단지 및 위치 요약
| 단지명 | 위치 | 공급호수 | 최초입주 | 주요대상 |
| 서울삼전 | 송파구 백제고분로 32길 | 40호 | 2015.08 | 신혼부부·한부모 |
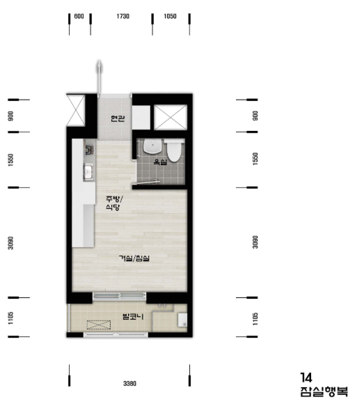
| 서울잠실 | 송파구 백제고분로 7길 | 40호 | 2022.02 | 주거급여 수급자 |
| LH수서1 | 강남구 밤고개로 | 830호 | 2023.02 | 대학생·청년 |
| LH수서2 | 강남구 자곡로 | 1,080호 | 2024.04 | 대학생·청년·신혼부부 |
| 강동천호 | 강동구 진황도로23길 | 94호 | 2025.02 | 청년·신혼부부·주거급여 |




📝 모집 일정 및 신청 방법
- 청약 접수: 2025년 7월 28일(월) 10:00 ~ 7월 29일(화) 17:00
- 서류제출 대상자 발표: 8월 1일(금) 17:00 이후
- 서류제출 기간: 8월 4일(월) ~ 8월 8일(금), 등기우편 제출만 가능
- 당첨자 발표: 10월 31일(금) 예정
- 청약 방법: LH청약플러스 홈페이지 또는 모바일앱
💡 현장 접수는 불가하며, 접수 마감 직전에는 접속자 폭주로 인해 불편이 생길 수 있으니 여유 있게 신청하세요.

✅ 신청자격 및 계층별 세부 요건
① 대학생/청년 계층
- 대학 재학 또는 다음 학기 입학/복학 예정자
- 청년(만 19~39세), 사회초년생(소득활동 5년 이하)
- 무주택자, 소득·자산 기준 충족자
- 청약통장 필요 (청년은 의무)
② 신혼부부·예비신혼부부·한부모가족
- 혼인 7년 이내 또는 6세 이하 자녀 포함
- 혼인 전이라도 입주 전까지 증빙 가능하면 신청 가능
- 맞벌이 여부에 따라 소득 기준 상이
- 청약통장 필요
③ 주거급여 수급자
- 해당 세대 전체가 무주택이며 주거급여 수급 중
- 소득 및 자산 기준 없음 (수급자 증명 필요)
📌 신청일 기준 무주택 세대원이어야 하며, 입주시까지 유지되어야 합니다.
💰 임대조건 요약
| 단지 | 주요형 | 공급대상 | 계약면적 | 보증금 | 월임대료 | 최대거주 |
| 삼전 | 26형 | 신혼·한부모 | 약 53㎡ | 약 82만 ~ 544만 원 | 약 4만 ~ 13만 원 | 최대 14년 |
| 잠실 | 14A | 주거급여 | 약 34㎡ | 약 55만 ~ 364만 원 | 약 2천 ~ 9천 원 | 20년 |
| 수서1 | 14A | 대학생·청년 | 약 33㎡ | 약 47만 ~ 303만 원 | 약 2천 ~ 7천 원 | 10년 |
| 수서2 | 36A | 청년·신혼 | 약 81㎡ | 약 120만 ~ 848만 원 | 약 6천 ~ 20만 원 | 최대 14년 |
| 강동천호 | 26A·36A | 청년·신혼·주거급여 | 약 71~101㎡ | 약 41만 ~ 741만 원 | 약 2천 ~ 18만 원 | 최대 14년 |
📌 임대보증금 및 월임대료는 전환 가능(전환이율 3.5~7%) / 연 1회 조정됨




🚇 경쟁 단지와의 비교 분석
| 요소 | 서울 삼전 잠실 | 수서1,2 | 강동천호 | 경쟁지역 예시(마포/노원) |
| 교통 | 2호선 잠실역, 9호선 종합운동장역 | 수서SRT, 수서역세권 개발지 | 5호선 천호역 인접 | 지하철 접근성은 유사 |
| 입지 | 송파 한복판 | 강남권, 역세권 신축 | 강동 중심생활권 | 일부 지역 노후 단지 많음 |
| 시설 | 냉장고, 책상, 책장, 붙박이장 등 | 고급화된 마감재 | 상대적으로 기본 사양 | |
| 임대료 | 중간~상위 수준 | 대학생/청년 친화 | 저소득층 친화 | 지역에 따라 상이 |
🔍 이 단지, 이런 분들께 추천합니다!
👍 장점
- 서울 도심 내 희소성 높은 행복주택
- 수서역세권 대규모 신규 단지 포함
- 계층별 다양한 유형 선택 가능
- 비교적 저렴한 임대료 + 옵션 포함
👎 단점
- 예비입주자 순번제라 실제 입주까지 시간 소요 가능
- 경쟁률이 높아 추첨 통과 어려움
🎯 추천 대상
- 청년·대학생으로 서울 중심권에 거주 희망자
- 신혼부부 중 주택마련 전 거치용 주거 희망자
- 주거급여 수급자로 서울 시내 안정적 주거지 희망자
🧾 결론 요약
이번 서울 행복주택 예비입주자 모집은 수요가 집중된 서울 강남3구 및 강동권에서 진행되며, 역세권, 신축, 옵션 제공 등 실거주 편의성이 매우 높습니다. 청년, 대학생, 신혼부부 등 다양한 계층을 대상으로 하며, 무주택 세대구성원 조건과 소득·자산 기준만 충족한다면 누구나 신청 가능합니다.
단, 예비입주자라는 점에서 실제 입주까지는 시간이 소요될 수 있으니, 장기적 주거 플랜을 가진 분들에게 더욱 적합합니다.
반응형
'부동산' 카테고리의 다른 글
| 🔍 "재개발 없이 주거지 정비 가능?" 쌍문동 모아타운 관리계획 핵심 요약! (1) | 2025.07.24 |
|---|---|
| 서울신림1단지 50년공공임대주택 예비입주자 모집공고 분석 (2025년 7월) (2) | 2025.07.18 |
| 🏠 전세사기 걱정 없는 매입임대주택! LH가 공급하는 저소득층 맞춤형 공공임대 청약 안내 (2025.07.10) (2) | 2025.07.11 |
| 🏡 파주시 신혼희망타운 행복주택 예비입주자 모집공고 (2025년 7월) (1) | 2025.07.09 |
| 🔑파주시 행복주택 예비입주자 자격완화 모집 시작! 청년·신혼부부·고령자 모두 주목하세요 (0) | 2025.07.09 |